
徑向擠壓專用設備-2000噸液壓機
擠壓設備是用沖頭或凸模對放置在凹模中的坯料加壓,使之產生塑性流動,從而獲得相應于模具的型孔或凹凸模形狀的制件的一種壓力加工方法。徑向擠壓專用設備-2000噸液壓機擠壓時,坯料產生三向壓應力,即使是塑性較低的坯料,也可被擠壓成形。
液壓機常用的擠壓方式分類:
1、正擠壓:生產時,金屬流動方向與凸模運動方向相同
2、反擠壓:生產時,金屬流動方向與凸模運動方向相反
3、復合擠壓:生產時,坯料一部分金屬流動方向與凸模運動方向相同,另一部分金屬流動方向與凸模運動方向相反
4、徑向擠壓:生產時,金屬流動方向與凸模運動方向成90度。

本文主要介紹的是徑向擠壓專用設備-2000噸液壓機擠壓方式中的徑向擠壓,徑向擠壓在擠壓時,金屬的流動方向與凸模的運動動方向垂直。即在擠壓時,金屬的流動方向是離心方向。利用徑向擠壓的方法,可以加工具有凸緣及凸臺的軸對稱零件。
一、徑向熱擠壓工藝特點:
1)熱擠壓是幾種擠壓工藝中早采用的擠壓成形技術,它是在熱鍛溫度下借助于材料塑性好的特點,對金屬進行各種擠壓成形,廣泛用于生產鋁、銅等有色金屬的管材和型材等,屬于冶金工業范圍。
2)熱擠壓特點:
1.擠壓工藝比較簡單,一次擠壓成型,加工工序少(僅需六種設備完成型材的成品工作),生產效率比較穩定。
2.節省原材料和機加工時間。
3.擠壓出來的產品質量好,精度高。
4.擠壓力較小,可以擠壓強度較高、尺寸較大的產品。
徑向擠壓專用設備-2000噸液壓機顧名思義主要是擠壓板材的機器,2018年新研發了框架式的擠壓結構,同比之前老式的擠壓率要增長3-5倍,型材產量12小時可以擠出12噸左右,山東威力重工綜合以上優勢,完善的售后,也是一致得到500多家用戶的好評,一貫按照合同如期交貨,90多天生產周期,免費安裝調試,終身維修。
二、徑向冷擠壓工藝特點:
1)冷擠壓是無切屑、少切屑零件加工工藝之一,是指在冷態下將金屬毛坯放進模具模腔內,在強大的壓力和一定的速度作用下,迫使金屬從模腔中擠出,從而獲得所需外形、尺寸以及具有一定力學性能的擠壓件。
2)冷擠壓特點:
1.節約原材料。
2.提高勞動生產率。
3.制件可以獲得理想的表面粗糙度和尺寸精度。
4.提高零件的力學性能。
5.可加工形狀復雜的,降低零件成本。
因為徑向擠壓專用設備-2000噸液壓機中這兩種擠壓工藝所擠壓的產品是不一樣的,所以不管是冷擠壓還是熱擠壓,選擇對的設備來生產對的產品才是是正確的。

徑向擠壓專用2000噸液壓機

山東威力重工液壓機生產車間

徑向擠壓設備-2000噸液壓機
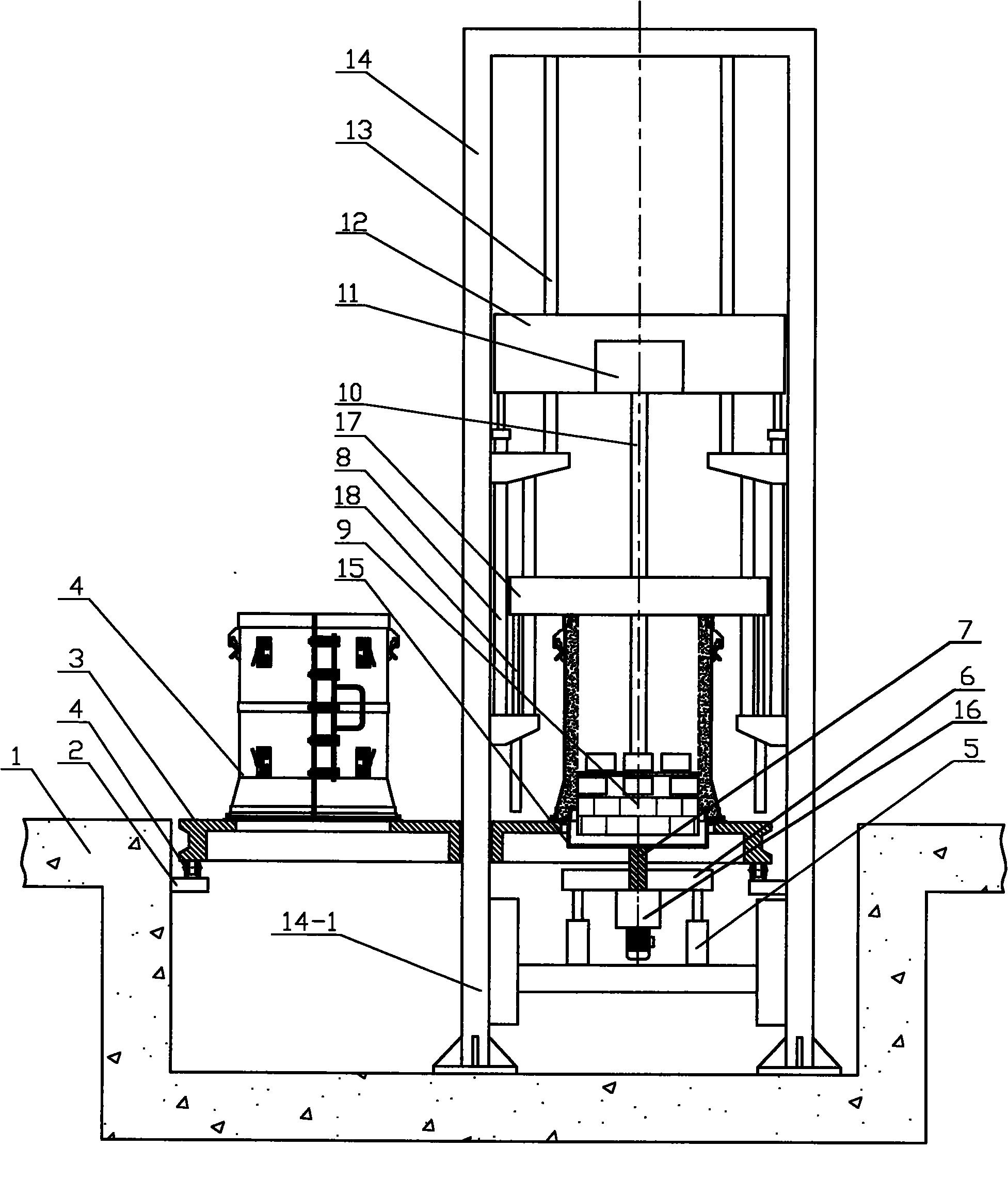
根據山東威力重工設計制造徑向擠壓專用設備-2000噸液壓機的經驗,一般推薦客戶使用800噸、1000噸、1500噸、2000噸液壓機在模具配合作用下,一次熱壓成型。機身設計結構三梁四柱式、上梁、工作臺通過立柱和緊固螺母、調整螺母結合成一個固定機架,機架精度靠調節螺母調整,具有良好的強度、剛度和精度保持性。上梁、工作臺、滑塊等大件為鋼板焊接件,經計算機優化設計,其強度、剛性、結構、防變形性等均滿足標準和使用要求,且有充裕的安全系數;具有獨立的動力機構及電氣系統,并采用按鈕集中控制,工藝動作采用PLC控制,可實現點動、半自動兩種操作方式。工作壓力、行程范圍均可根據工藝需要進行調整。適用于各種可塑性材料的壓制工藝。
徑向擠壓專用設備-2000噸液壓機部件與組成結構:
1、滑塊:箱形結構的鋼板焊接件,四柱導向孔處導向套材料為納米分子復合材料,具有良好的耐麼性和精度保持性。滑塊下平面有T形槽用于安裝模具。
2、上梁:箱形結構的鋼板焊接件,內裝有主工作油缸,上面裝有充液油箱等。
3、工作臺:鋼板焊接結構件,與上梁、滑塊通過立柱連成主機。
4、油缸:采用單缸或雙缸設計,布置在上橫梁孔內,采用雙道進口密封圈密封,導向部分采用焊銅處理,密封好耐磨性強,油缸體的材料為45號鍛鋼,鍛件為3級(GB/-1991)鍛件經過超聲波探傷檢測合格,調質處理硬度合格。
5、工作臺下方有頂出裝置,主要用于頂出、退料等工藝,也可用于反拉伸制件的成型工藝。
6、立柱:材料為45#鍛鋼,經調質處理,表面鍍硬鉻,增加耐磨性能,硬度合格。
7、螺母材料為45#鍛鋼,與立柱上的螺紋相配,鎖緊機身。
8、限位裝置:位于主機機身右側,行程開關控制上下極限位置,調節上下限位開關即調節滑塊上下運動位置。
2、液壓機操作方式:手動、半自動(雙手單次循環)。
2、滑塊在上、下限位處均設有限位開關。
3、液壓系統中設有安全閥,確保壓機不會超載工作而損壞。
4、上橫梁配置安全護欄以及上下用爬梯。
2、供方在徑向擠壓專用設備-2000噸液壓機制造完成后提前一周通知需方到制造廠驗收。 設備在用戶廠供方負責安裝調試,雙方共同確認產品已達到規定的技術要求和質量要求,同時乙方必須隨機提供設各的使用說明書、出廠合格證 (包括外購件合格證)及裝箱單等技術文件和易耗、易損件。乙方所有的供貨內容應保證壓力機能正常使用和維護。
3、山東威力重工負責在現場對用戶操作人員及設各維修人員進行設各的操作和維修培訓。

液壓機操作方式:
1、工作方式:定程和定壓;
2、液壓機操作方式:手動、半自動(雙手單次循環)。
安全保護:
1、設置急停按鈕,按下急停按鈕,四柱液壓機立即停止。
2、滑塊在上、下限位處均設有限位開關。
3、液壓系統中設有安全閥,確保壓機不會超載工作而損壞。
4、上橫梁配置安全護欄以及上下用爬梯。
徑向擠壓液壓機驗收標準:
1、設備驗收的標準按照雙方簽訂的技術協議及及上述供方提供的國家現行有關行業的標準執行驗收,內容包括外觀質量、技術參數、動作性能等。
2、供方在徑向擠壓專用設備-2000噸液壓機制造完成后提前一周通知需方到制造廠驗收。 設備在用戶廠供方負責安裝調試,雙方共同確認產品已達到規定的技術要求和質量要求,同時乙方必須隨機提供設各的使用說明書、出廠合格證 (包括外購件合格證)及裝箱單等技術文件和易耗、易損件。乙方所有的供貨內容應保證壓力機能正常使用和維護。
3、山東威力重工負責在現場對用戶操作人員及設各維修人員進行設各的操作和維修培訓。


徑向擠壓專用設備-2000噸液壓機
廠家直銷 質量保證采購:徑向擠壓專用設備-2000噸液壓機
質量承諾
山東威力重工全面做到:售前、售中、售后熱情服務。
主動:安裝、調試、培訓、等。及時:接到電話后,以很快捷的方式做出解決方案,保證用戶滿意。
物流配送
部分徑向擠壓專用設備-2000噸液壓機現貨供應,當天訂貨,當天發貨,購買便捷。
為了滿足客戶對產品時間上的要求,山東威力重工采取多種配送方式 : 1. 送貨上門;2. 客戶自提;3. 快遞上門;4. 加急貨件的發送可根據您的要求進行特快安排。
付款及聯系方式
山東威力重工液壓機有限公司
電話:18306370978(同微信) 傳真:0632-5863818
郵箱:2335649786@qq.com
公司地址:滕州市經濟開發區春藤路999號
威力資訊
- 2025-09-06 液壓機廠家三款污泥脫水壓濾機怎么選?
- 2024-03-09 鍛造鋁合金液壓機怎么選型?廠家出具方
- 2023-08-04 鋁合金球頭液壓機(框架式)使用機型介
- 2023-07-01 500噸框架式液壓機壓制耐火蛭石板工藝
- 2023-06-07 315噸拉伸風機外殼液壓機客戶案例
- 2023-05-17 鍛造截齒專用四柱液壓機(鍛造專用設備
- 2023-04-23 315噸液壓機沖壓哪些型號礦用錨桿托盤?
- 2023-03-21 1000噸四柱液壓機鍛造汽車長軸配機械手
- 2023-02-08 500噸框架式液壓機用于多向鍛造汽車配件
- 2023-01-28 蛭石板怎么壓塊成型?400噸四柱液壓機廠
威力產品分類
徑向擠壓專用設備-2000噸液壓機關產品
聯系威力
山東威力重工液壓機有限公司
電話:18306370978(同微信)
手機:18306370978
傳真:0632-5863818
Email:2335649786
公司地址:滕州市經濟開發區春藤路999號

多年專注液壓機機械行業













